三通流量阀&二通流量阀介绍(转自液压微刊)
2021年4月5日 15:54在常规开中位阀控系统中,由于负载的变化导致阀口前后压差变化,从而导致阀口流量变化,导致执行元件速度变化,导致系统溢流,导致功率损失,单泵多执行元件系统由于负载不同还会导致执行元件速度失控,为提高系统效率,提高系统调速刚性,对于单泵多负载系统引入负荷传感多路阀。
由阀口基本流量公式可知
Q=Cq*A*sqrt(2*ΔP/ρ)
Cq—流量系数,A—阀口面积,ΔP—阀口前后压差,ρ—流体密度
通过阀口流量取决于阀口面积和阀口前后压差,所以只要保证阀口前后压差ΔP一定,即可通过控制阀口面积A即可准确控制阀口流量。
在负荷传感系统中,控制阀口压差主要通过三通流量阀和二通流量阀实现。
1、三通流量阀
1.1、溢流节流型调速阀原理
由溢流阀和节流阀并联组成,通过溢流阀保持节流阀前后压差恒定,压差为弹簧力。使P2出口流量只与节流阀开口面积有关,多余流量通过T口回油箱,实现按需提供流量。
由于该阀有1个进口,2个出口,作用又是控制负载的流量,习惯称为三通流量阀。
P1A=P2A+Fs
P1-P2=Fs/A
P1—进口压力,P2—出口压力,Fs—弹簧压力
1.2、溢流节流型调速阀作用
①卸荷系统总流量;
②控制每一联阀流量;
③建立系统所需压力;
④对系统起缓冲作用;
2、二通流量阀
2.1、减压节流型调速阀原理
由减压阀和节流阀串联组成,通过定差减压阀保持节流阀前后压差恒定,压差为弹簧力。使P3出口流量只与节流阀开口面积有关。多余的压力通过减压阀消耗,实现各联节流阀前后压差恒定。
由于该阀有1个进口,1个出口,称为二通流量阀,作用为平衡压力,又称压力补偿阀。
P2A=P3A+Fs
P2-P3=Fs/A
P2—进口压力,P3—出口压力,Fs—弹簧压力
2.2、减压节流型调速阀作用
①平衡多联阀之间的压力
②保证多联阀同时动作
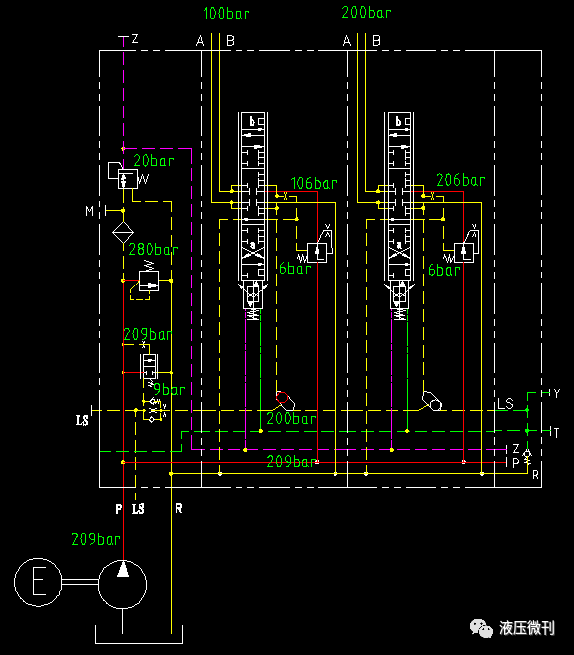
3、三通流量阀和二通流量阀在比例阀中的应用
以HAWE/Radk-Tech比例多路阀为例。
3.1、定量泵系统
定量泵系统为减少溢流发热及保护元件,需在执行元件不工作时对总流量进行卸荷,执行元件需要调速时,多余流量旁通回油箱,需要使用带三通流量阀的多路阀。
3.2、变量泵系统
变量泵系统由于Ls引入泵控系统,可在执行元件不工作时使泵排量保持在较小排量,只有20+bar的待命压力,执行元件需要调速时,通过Ls控制泵的排量实现按需提供流量。
工程师必备
- 项目客服
- 培训客服
- 平台客服
TOP




















